PROJECT
Project
Wood Green School
Client
Hewer FM
Project Details
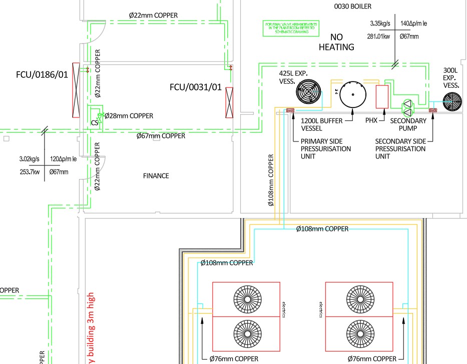
The project comprised the renewal of the school heating system as part of a Decarbonisation plan. The project included the installation of 4 Air Source heat pumps, associated pumps and controls and new pipework and emitters to replace aged and inefficient gas fired boiler plant. Project completion Summer 2025
Chapel Court, Chapel Road, Astwood Bank, Redditch, Worcestershire B96 6AL


